+386 (0)2 61 30 360       Ta e-poštni naslov je zaščiten proti smetenju. Potrebujete Javascript za pogled.

   

Ograje s profili pod kotom

ALUMINIJASTA OGRAJA S PROFILI POD KOTOM

 

 

STEBRI

 

Stebrički na zalogi (v surovi obliki in RAL 7016 ANTRACIT):

  • KVADRATNA CEV EN AW – 6060 50 x 50 x 2 mm
  • KVADRATNA CEV EN AW – 6060 50 x 50 x 3 mm
  • KVADRATNA CEV EN AW – 6060 60 x 60 x 2 mm
  • KVADRATNA CEV EN AW – 6060 60 x 60 x 3 mm
  • KVADRATNA CEV EN AW – 6060 80 x 80 x 2 mm
  • KVADRATNA CEV EN AW – 6060 80 x 80 x 3 mm
  • KVADRATNA CEV EN AW – 6060 80 x 80 x 4 mm
  • KVADRATNA CEV EN AW – 6060 100 x 100 x 3 mm
  • KVADRATNA CEV EN AW – 6060 100 x 100 x 4 mm
  • STEBER ZA OGRAJE Z POSNETIMI ROBOVI EN AW – 6060 75 x 75mm (4 luknje za vijačit)
  • STEBER ZA OGRAJE EN AW – 6060 100 x 100mm (4 luknje za vijačit)

 

POLNILO

 

Profil na zalogi (v surovi obliki in RAL 7016 ANTRACIT):

 

AL OGRAJNI PROFIL ZA LAMELNE OGRAJE POD KOTOM EN AW-6060 99 x 12 T66 # PS15231

 

 

VEZNI PROFIL

 

Profil na zalogi (v surovi obliki RAL 7016 ANTRACIT):

 

AL VEZNI PROFIL ZA LAMELNE OGRAJE S PROFILI POD KOTOM EN AW-6060 42,5 x 25,5 x 16,8  dolžina profilov je 6 m.

 

vezni profil

 

 

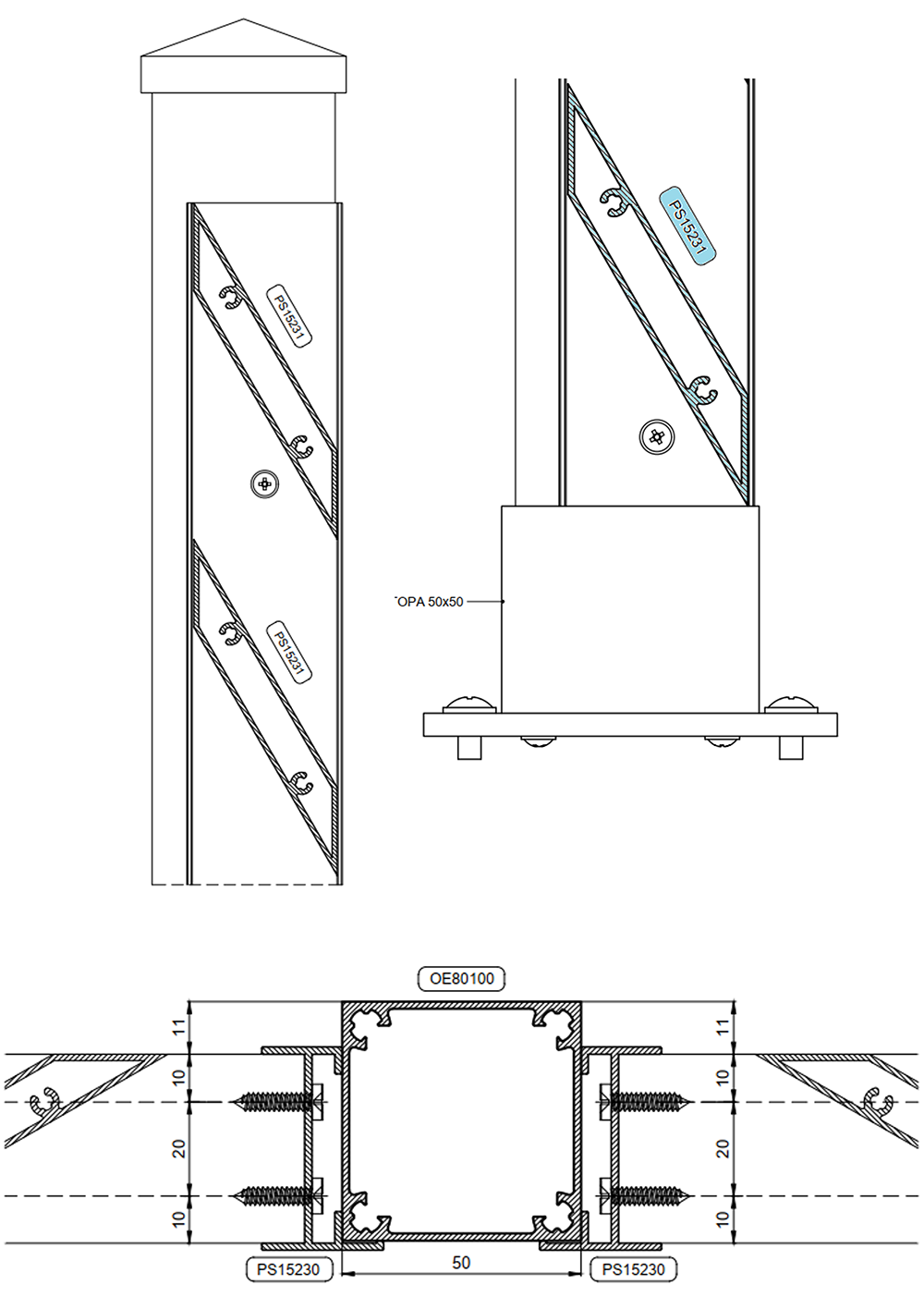
PRIMER MONTAŽE OGRAJE S PROFILI POD KOTOM

 

 

Imamo tri opcije montaže veznega profila:

 

1. MONTAŽA PROFILA FRONTALNO PRED STEBROM

 

montaza 1

 

2. MONTAŽA PROFILA ZA STEBROM

montaza 2

 

3. MONTAŽA PROFILA V SREDINI STEBRA (v tem primeru je potrebno porezati 8,7 mm profila)

 

montaza 3

 

 montaza 4

 


 

PRIROBNICE

Prirobnice na zalogi (v RAL 7016 ANTRACIT):

  • AL PRIROBNICA ZA STEBER OGRAJE - montažna za cev 50x50 mm RAL 7016 – ANTRACIT FINA STRUKTURA
  • AL PRIROBNICA ZA STEBER OGRAJE - montažna za cev 75x75 mm RAL 7016 – ANTRACIT FINA STRUKTURA
  • AL PRIROBNICA ZA STEBER OGRAJE - montažna za cev 100x100 mm RAL 7016 – ANTRACIT FINA STRUKTURA

 

prirobnice 1

 

Primer prirobnice, ki omogoča popolnoma montažno po sestave. Prirobnica ima luknje za privijačenje stebra na prirobnico in za privijačenje same prirobnice na tla. Zgornja prirobnica je primerna za steber 50x50 mm in 100x100 mm.

 

Še primer prirobnica primerna za steber ograje 75x75 mm z posnetimi robovi.

 

 


 

CEVNE KAPICE

 

Cevne kapice na zalogi (v RAL 7016 ANTRACIT):

 

  • AL CEVNA KAPICA ZA STEBER OGRAJE 50x50 mm RAL 7016
  • AL CEVNA KAPICA ZA STEBER OGRAJE 75x75 mm RAL 7016
  • AL CEVNA KAPICA ZA STEBER OGRAJE 100x100 mm RAL

 

cevna kepica 1

 

Primer cevne kapice primerne za steber dimenzij 50x50 mm in 100x100mm.

cevna kepica 2

 

Primer cevne kapice primerne za steber dimenzij 75x75 mm z posnetimi robovi.

 

 


 

OSTALI POSAMEZNI OGRAJNI ELEMENTI

Profili na zalogi (v surovi obliki oz. mill finish):

 

1. AL KOTNIK ENAKOKRAKI EN AW-6060 25 x 25 x 2.0 AlMgSi0,5

 

element 1

 

Ta profil je primeren za balkonske ograje iz pravokotnih cevi npr. pravokotne cevi 40 x 20 x 1.5 mm, 40 x 20 x 2 mm…

 

Primer izgleda balkonske ograje z letvami 40 x 20 x 1.5 mm:

 

element 2

 

 

2. AL U-PROFIL EN AW-6060  20x 60x 20x 2   AlMgSi0,5

 

element 3

 

Ta U-profil služi kot vezni element v primeru dvoriščnih ograj s solzastim profilom višine 90 mm. Primer solzastega profila:

 


 

VIJAČNI MATERIAL

Za montažo aluminijastih ograj se uporabljajo nerjavni polkrožni TORX vijaki DIN 7504 naslednjih dimenzij:

  • VIJAK KNIPING 4.2 x 19 M DIN 7504 TX20 A2 – ti vijaki so primerni za montažo aluminijaste ograje s pravokotnimi cevmi širine 20 mm in kadar je ograjno polnilo S-profil.
  • VIJAK KNIPING 4.8 x 25 M DIN 7504 TX25 A2 – ti vijaki so primerni za montažo ograj, kadar je polnilo Z-profil

vijaki 1

 

V primerih kadar se v profile, vezne kose in stebre luknje pred sestavo zvrtajo se uporabijo vijaki:

  • VIJAK KNIPING 3.9 x 16 M DIN 7981 TX15– ti vijaki so primerni za vijačenje kotnih profilov v vezni kos.
  • VIJAK M6 x 10 M ISO 7380-1 A2 ULS – ti vijaki so primerni za vijačenje veznih kosov na stebre če so pred tem v stebre in vezne kose zvrtane luknje in imajo vrezan navoj.

vijaki 2

 

Za pritrditev stebrov na prirobnice in prirobnic na tla se pa uporablja sledeče:

  • TURBO VIJAK 7.5 x 92 POCINKAN – ti vijaki so primerni za vijačenje prirobnic na stebre ograje (v primeru da izberete steber 75x75 mm ali 100x100 mm saj imata le ta stebra že pripravljanje luknje za takšno sestavo).
  • BETNOSKA SIDRA M8 x 115 POCINKANA – ta betonska sidra so namenjena sidranju stebrov z prirobnico v tla. Prirobnice že imajo pripravljene luknje ki so primerne za M8 betonska sidra. (ta način sidranja pride v poštev če za stebre ograje izberete stebre 50x50 mm, 75x75 mm in 100x100 mm.)

vijaki 3

Spletna prodaja / katalog MIBRA

 

Vstopite v naš spletni katalog / trgovino, in si sestavite svoj projektni popis materiala.

 

VSTOPI

Kje smo

MIBRA d.o.o.

Slivniška cesta 14, 2311 Hoče 

 LOKACIJA

Kontakt

(0)2 61 30 360

 (0)2 61 30 375

 Ta e-poštni naslov je zaščiten proti smetenju. Potrebujete Javascript za pogled.

Delovni čas

Pon-čet: 07.00 - 17.00

Petek: 07.00 - 15.00

Sobota: 08.00 - 12.00

Nedelja in prazniki zaprto

Koristno

Avtorske pravice © 2026 Mibra d.o.o.. Vse pravice pridržane.
Joomla! je brezplačna programska oprema izdana pod GNU General Public License.
.